Boliger til salgs
Linevegen på Bryne
Nå har du muligheten til å sikre deg ett av totalt 8 prosjekterte rekkehus på Bryne! Første byggetrinn med 4 boliger er nå ute for salg. 1 solgt!
Sted
Bryne
Time kommune
Type
Rekkehus
Antatt ferdigstilling
2027
Kontaktpersoner
Trond Tveit
932 41 604
Send e-post
Siv M. Jåtten
Eiendomsmegler 1
977 46 629
Send e-post
Claire Lonsdale
Eiendomsmegler 1
970 31 359
Send e-post
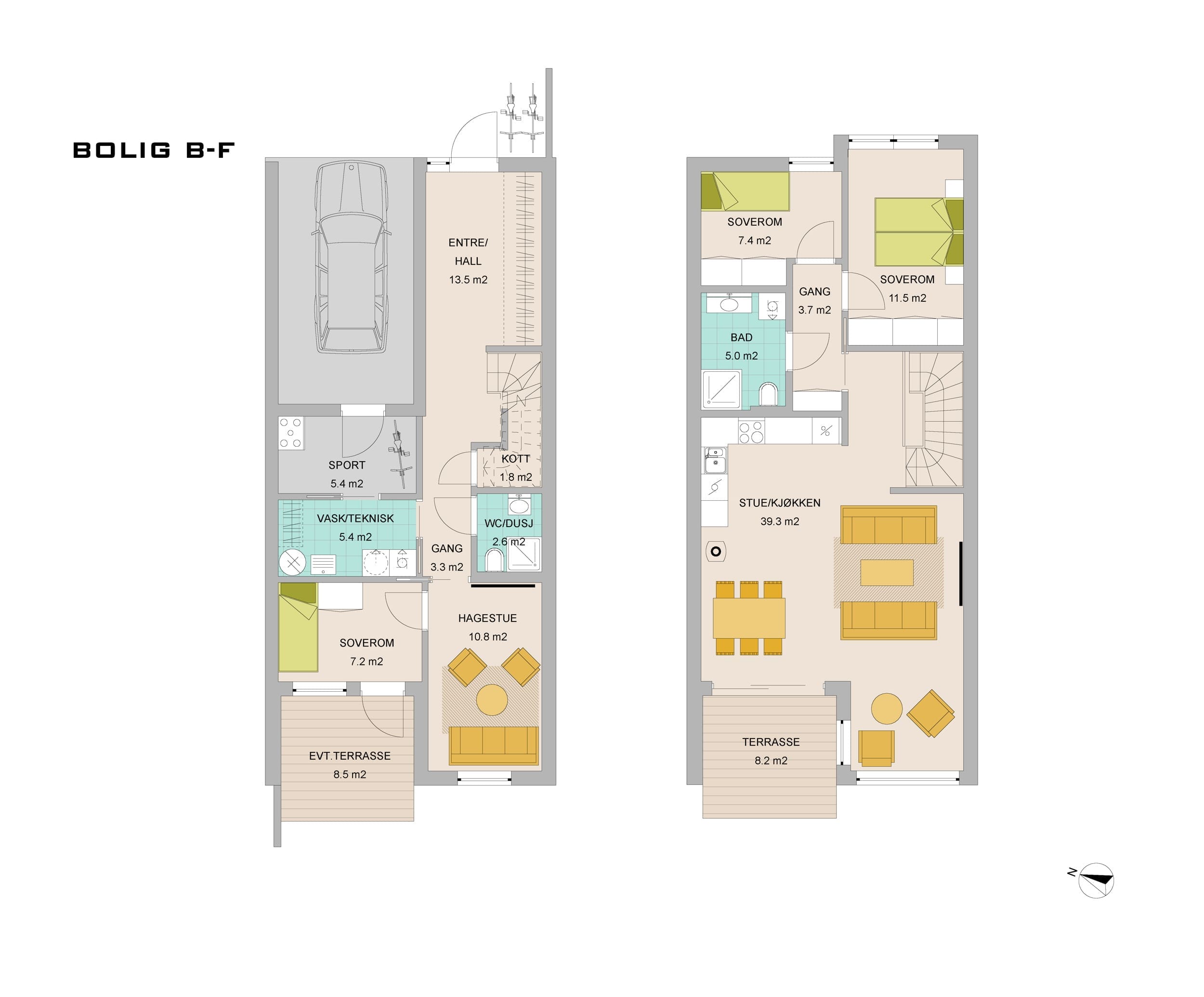
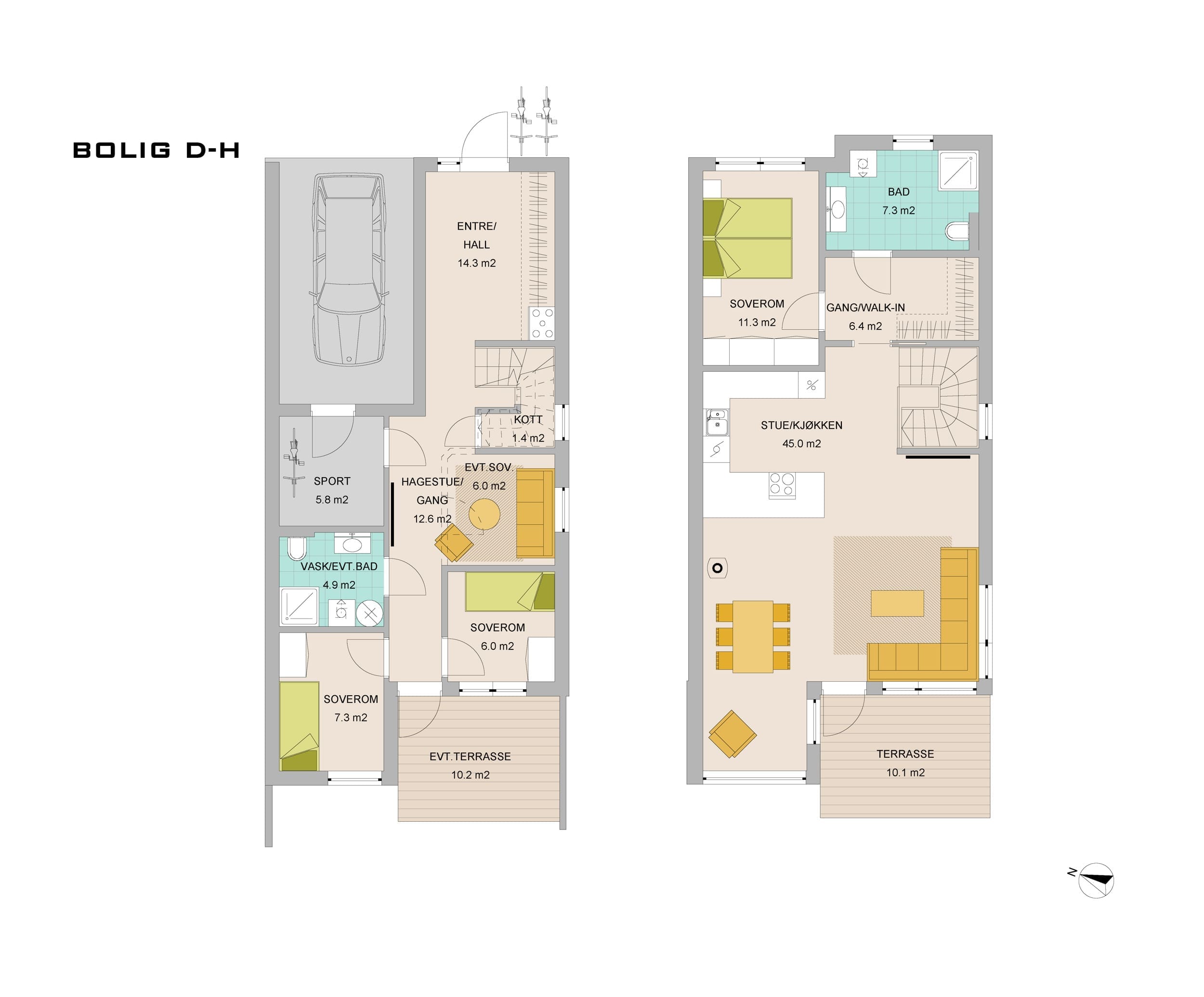
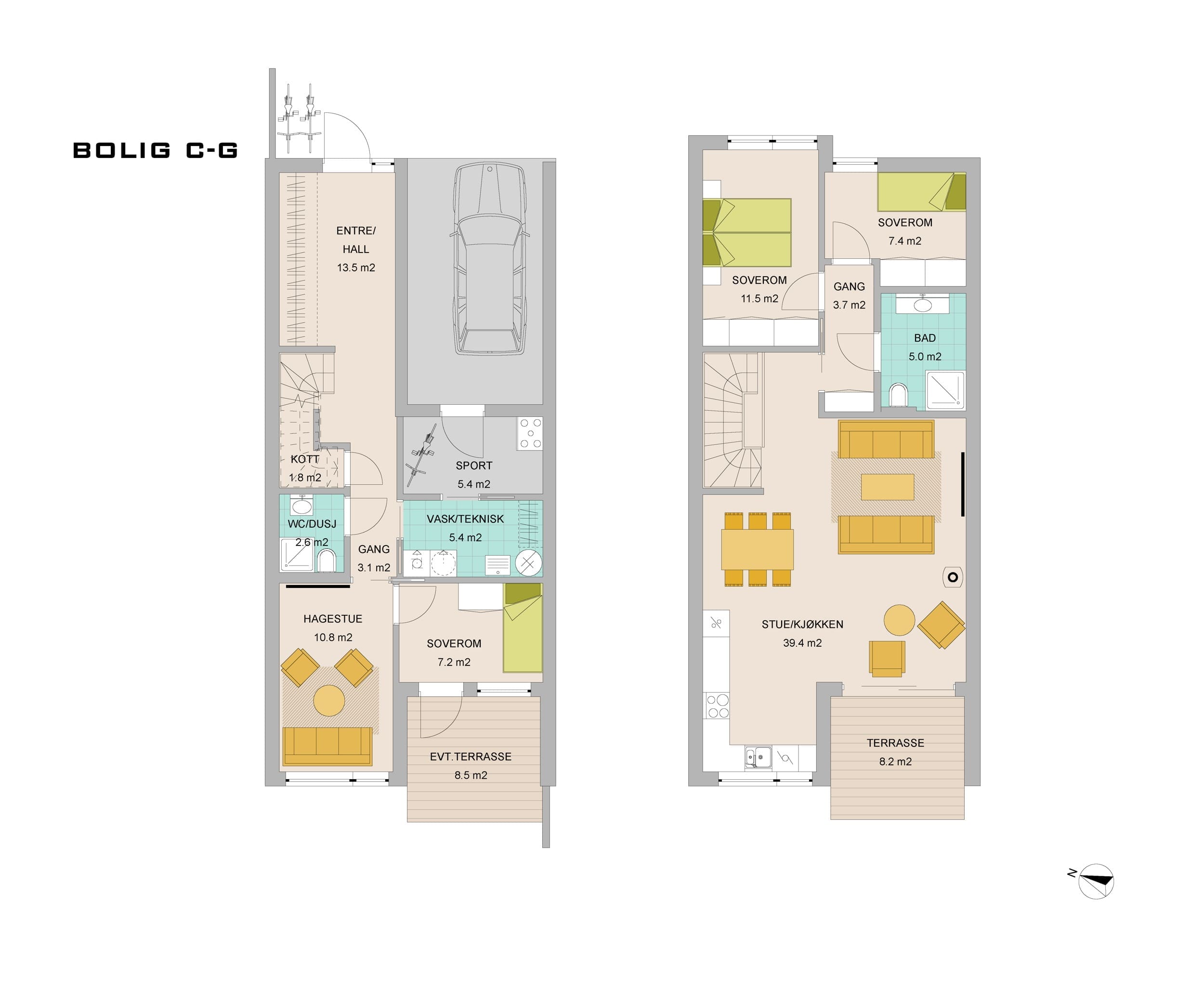
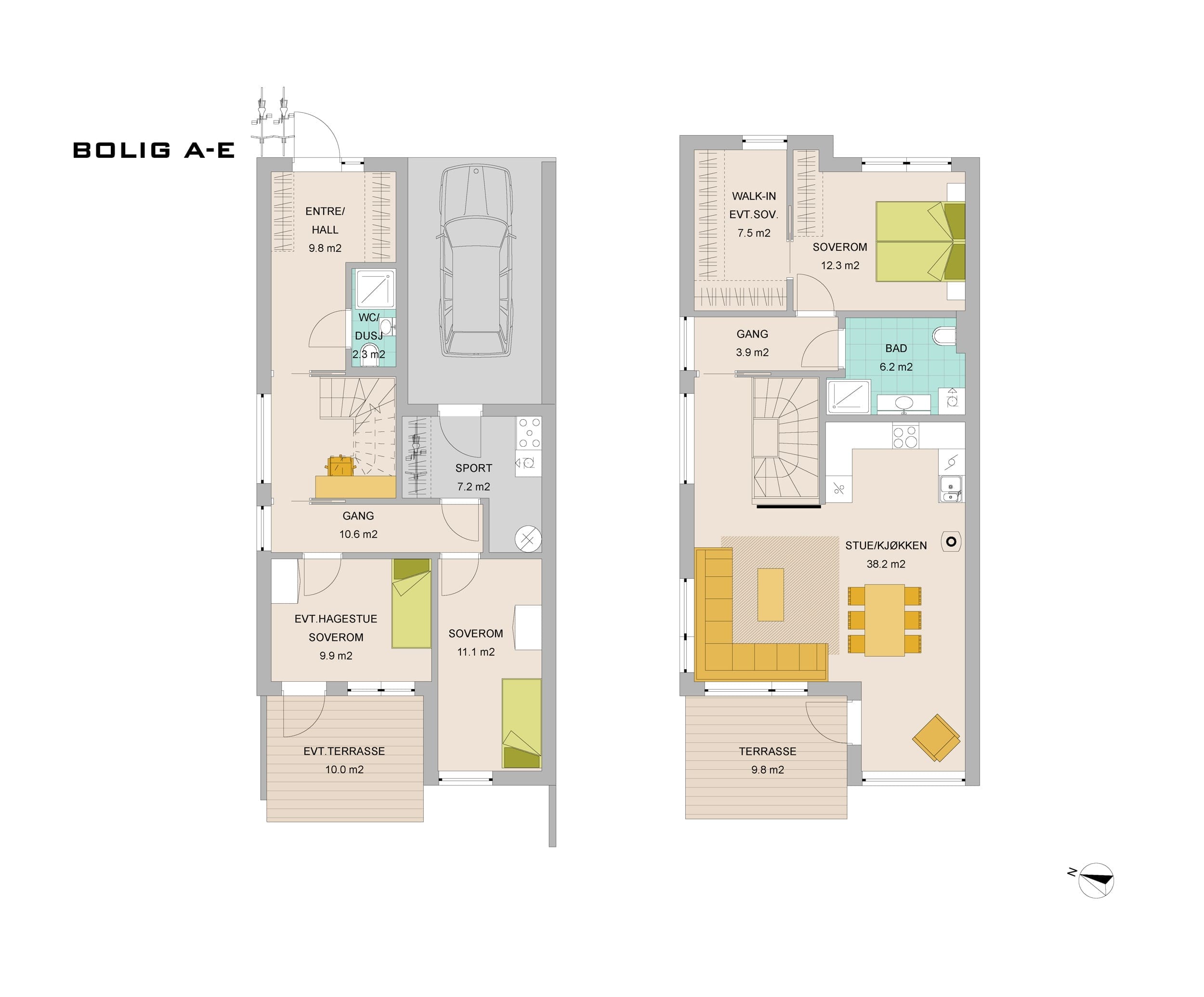
4 innholdsrike rekkehus med ulike størrelser og gode planløsninger
Beskrivelse
- Romslige boliger på 123-130 kvm med gjennomtenkt planløsning over to etasjer.
- Åpen garasje – praktisk parkeringsløsning og direkte adkomst til sportsbod.
- Store vindusflater mot vest, som gir mye naturlig lys.
- Innholdsrik kjøkkenløsning fra Aubo.
Boligene er tegnet med tanke på dagens familier, enten du er en barnefamilie, førstegangskjøper eller ønsker å oppgradere fra din nåværende bolig. Fra praktiske løsninger som åpen stue- og kjøkkenløsning, 3-4 soverom og innbydende bad – her kan du skreddersy ditt hjem etter egne behov.
Sentralt men litt tilbaketrukket beliggenhet på Bryne
Disse rekkehusene befinner seg i et etablert boligområde, med kort vei til både butikker, skoler, flere barnehager og idrettsanlegg i kort gangavstand.
Praktisk informasjon:
Areal: Ca. 123-130 kvm.
Byggetid: Estimert ferdigstillelse i løpet av 2027.
Antall enheter i prosjektet: 8 rekkehus.
Tilpasning etter ditt ønske:
Boligene leveres klare for egeninnsats. For et pristillegg på kr. 265.000,- kan boligene leveres ferdig med gulv- og malerpakke. Komplett oversikt over leveransen finner du i prislisten.
Kontakt megler for tomtevisning eller ytterligere informasjon om prosjektet.
Beliggenhet
Linevegen 4 har en sentrumsnær beliggenhet og samtidig nærhet til skole, barnehager og idrettsanlegg.
Attraktiv og skjermet beliggenhet i gangavstand til Bryne sentrum. Her bor du i nærhet til alt av servicetilbud Bryne har å tilby i form av butikker, serveringssteder, offentlig transport og fritidstilbud.
Oversikt
| Bolig | BRA-i | Soverom | Pris |
|---|---|---|---|
| Bolig E | 131 m² | 3 | 5.990.000 + omk. |
| Bolig F | 128 m² | 3 | 5.790.000 + omk. |
| Bolig G | 128 m² | 3 | 5.890.000 + omk. |
| Bolig H | 133 m² | 3 | SOLGT |
Bildegalleri
Klikk på bildene for å se større
Hvorfor velge Rogalandshus?
Vi har fokus på kvalitet og kompetanse i alle ledd, og strekker oss langt for å gjøre det lille ekstra!
ansatte
%
fagfolk
%
lokalt
%
trygghet
Ønsker du å bruke et jærsk byggefirma som satser på god kvalitet og nært samarbeid med byggherren?
Kontakt Trond Tveit direkte, eller send oss en melding via skjemaet under, så kommer vi tilbake til deg så snart som mulig.
