Boliger til salgs
Malminhagen i Sandnes
Moderne og innholdsrike eneboliger. Landlig, men sentralt på Malmheim.
Sted
Malmheim
Sandnes kommune
Type
Eneboliger
Antatt ferdigstilling
Første halvår 2027
Kontaktpersoner
Trond Tveit
932 41 604
Send e-post
Siv M. Jåtten
Eiendomsmegler 1
977 46 629
Send e-post
Claire Lonsdale
Eiendomsmegler 1
970 31 359
Send e-post
3 flotte eneboliger i familievennlig område med nærhet til naturen
Beskrivelse
Velkommen til Malminhagen 27, landlig men sentralt på Malmheim.
Her skal det bygges 3 flotte eneboliger i størrelse fra 167-176 m2, fordelt over to etasjer. Her får en innholdsrik enebolig med alle de romfunksjonene en familie trenger for å få hverdagen til å fungere. Boligene har garasje med inngang til vaskerom som veldig praktisk i en travel hverdag. Hovedsoverom med walk-inn garderobe gir en følelse av luksus.
Fra 2. etasje er det utgang til en romslig, overbygget terrasse som forlenger utesesongen. Terrassen er sørvendt som gir gode solforhold både på dagtid og kveldstid perfekt for avslapning og sosiale sammenkomster.
Her bor en i et familievennlig område med nærhet til naturen. Nå har du muligheten til å skape ditt perfekte hjem i et hyggelig nabolag, med både moderne krav og komfort ivaretatt.
Innhold bolig 2
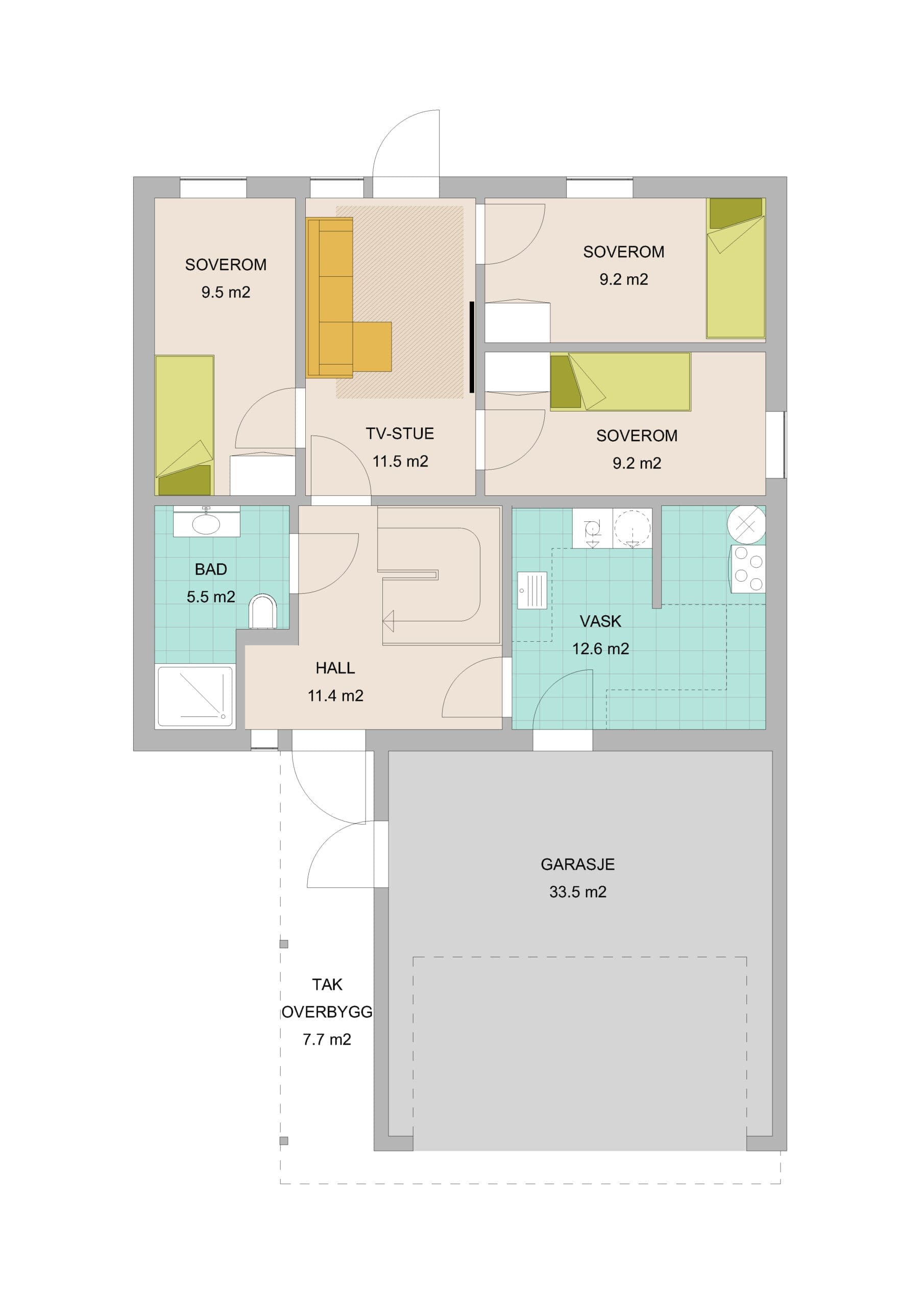
1. etasje: Hall, bad, 2 soverom, tv-stue, romslig vaskerom/bod med direkte adgang fra garasje.
2. etasje: Kjøkken, stue med utgang til takterrasse, bad, 2 soverom, hovedsoverommet har tilhørende garderoberom.
Parkering i dobbel garasje.
Innhold bolig 3 og 4
1. etasje: Hall, bad, 3 soverom, tv-stue, romslig vaskerom/bod med direkte adgang fra garasje.
2. etasje: Kjøkken, stue, hovedsoverom med tilhørende garderoberom og bad. Utgang til takterrasse fra stue og kjøkken.
Parkering i dobbel garasje.
Beliggenhet
Omgitt av grønne enger og bondegårder, ligger Malminhagen. Boligfeltet under full utbygging og begynner virkelig å ta form. Like ved barnehage og den nye barneskolen. Idrettshall og nærbutikk. Julabygdå er ei perle. På samme tid er Sandnes sentrum bare 5 minutter unna med bil. Og skal du til Forus, Sola eller Jæren, så er ingenting langt unna. Julabygdå er faktisk veldig sentralt, og samtidig landlig og koselig.
Oversikt
| Bolig | BRA-i | Soverom | Pris |
|---|---|---|---|
| Bolig 2 | 167 m² | 4 | 8.190.000 + omk. |
| Bolig 3 | 176 m² | 4 | 8.590.000 + omk. |
| Bolig 4 | 166 m² | 4 | 8.390.000 + omk. |
Bildegalleri
Klikk på bildene for å se større
Hvorfor velge Rogalandshus?
Vi har fokus på kvalitet og kompetanse i alle ledd, og strekker oss langt for å gjøre det lille ekstra!
ansatte
%
fagfolk
%
lokalt
%
trygghet
Ønsker du å bruke et jærsk byggefirma som satser på god kvalitet og nært samarbeid med byggherren?
Kontakt Trond Tveit direkte, eller send oss en melding via skjemaet under, så kommer vi tilbake til deg så snart som mulig.
