Boliger til salgs
Luftå i Sandnes
6 moderne og funksjonelle rekkehus på Ganddal i Sandnes. Kun 1 igjen – byggingen er i gang!
Sted
Ganddal
Sandnes kommune
Type
Rekkehus
Antatt ferdigstilling
3. kvartal 2026
Pris
Fra 5.950.000 + omk.
Forutsatt egeninnsats
Omkostninger
67.760
Dokumenter
Annet
Kontaktpersoner
Trond Tveit
932 41 604
Send e-post
Leiv Inge Stokka
Eiendomsmegler 1
952 10 773
Send e-post
6 funksjonelle og moderne rekkehus på Ganddal
Er dere en mindre familie som trenger soverom, eller ungt par kan dette passe perfekt for dere. Det passer også de som ikke lenger vil ha den store eiendommen med det store huset.
Innhold
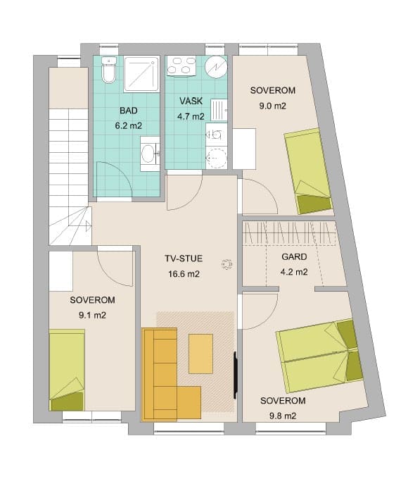
Her får du mye for pengene. Rekkehusene er fra 118-137 kvm BRA og har effektive planløsninger. I første etasje kommer du inn i vindfanget, og har egen garderobe. Det er i tillegg kott under trapp. Stor stue, kjøkken og et fullverdig bad finnes også i denne etasjen. Når du tar trappa opp i 2. etasje finner en både bad, 3 soverom, TV-stue og vaskerom. Alt tenåringen ønsker – kanskje ikke vaskerommet forresten!
Beliggenhet
Disse nye boligene glir rett inn i det allerede etablerte boligområdet på Ganddal.
Du er en kort gåtur til flotte turområder og natur. Du finner flere barnehager i nærheten, og skoleveien er både kort og trygg. Idrettsanlegget er også nært til eiendommene.
Nærheten til det meste gir deg en fleksibel og litt mer effektiv hverdag. En liten gåtur så er du på butikken, bensinstasjon, lademuligheter etc. Det er ikke langt til togstasjonen som igjen gjør at du er like ved Sandvedparken. Du er helt inntil sykkelstamveien som tar deg både til Forus og Stavanger i nord, og sørover mot Klepp og Bryne. Kanskje du kan sykle til jobben og kombinere både trening og arbeid!
Oversikt
| Bolig | BRA-i | Pris * |
|---|---|---|
| Nr. 58 | 118 m2 | SOLGT |
| Nr. 59 | 118 m2 | SOLGT |
| Nr. 60 | 118 m2 | 5.950.000 + omk. |
| Nr. 61 | 133 m2 | SOLGT |
| Nr. 62 | 118 m2 | SOLGT |
| Nr. 63 | 118 m2 | SOLGT |
* Boligene leveres klar for egeninnsats. For kr 260.000,- kan boligen leveres ferdig med gulv- og malerpakke.
Bildegalleri
Klikk på bildene for å se større
Hvorfor velge Rogalandshus?
Vi har fokus på kvalitet og kompetanse i alle ledd, og strekker oss langt for å gjøre det lille ekstra!
ansatte
%
fagfolk
%
lokalt
%
trygghet
Ønsker du å bruke et jærsk byggefirma som satser på god kvalitet og nært samarbeid med byggherren?
Kontakt Trond Tveit direkte, eller send oss en melding via skjemaet under, så kommer vi tilbake til deg så snart som mulig.
